1 Arctic Street
CANNING VALE WA 6155


OFFERS
Icon for listing bed 4
Icon for listing bath 2
Icon for listing car 2
Icon for listing land 526m2

Upcoming Inspections

Sunday, May 10 11:15am - 11:45am

Property Features

  • Garage Spaces: 2
  • Land Size: 526m2
Call Me

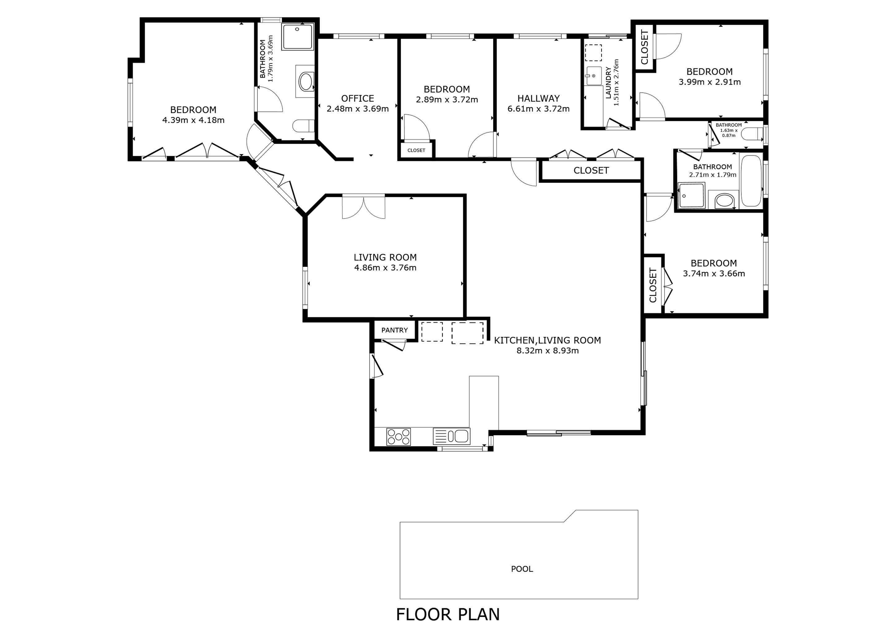
Family Living in the Heart of Caladenia - Theatre, Pool & Flexible Living Spaces

Positioned within the highly sought-after Caladenia Primary School catchment, this beautifully presented family home delivers the perfect balance of space, style, and lifestyle. Designed for modern living, the home offers multiple living zones, quality upgrades, and exceptional flexibility for growing families.

From the moment you arrive, the impressive double door entry sets the tone, welcoming you into a home that is both spacious and thoughtfully designed. Inside, a versatile home office or optional fifth bedroom provides the perfect solution for remote work, study, or guest accommodation.

The master suite is privately positioned and offers a comfortable retreat, complete with its own ensuite. Bedrooms 2, 3, and 4 are all well-sized and fitted with built-in robes, while the second bathroom is centrally located to service the home.

At the heart of the property, the open-plan kitchen, living, and dining area creates a warm and inviting space for everyday living and entertaining. The kitchen is well-appointed with stone benchtops, gas cooktop, and ample workspace, designed for both everyday living and serious cooking.
A high-capacity rangehood provides exceptional ventilation, making it ideal for those who enjoy wok cooking or high-heat cuisine at home.

For families who value space and lifestyle, this home truly stands out. A dedicated home cinema room provides the ultimate movie experience, while a second living area offers additional flexibility for relaxation or family separation.

Step outside and enjoy a lifestyle designed for entertaining and low maintenance. The backyard features easy-care landscaping with gravel pathways, along with a stunning underground swimming pool – perfect for summer enjoyment with family and friends.

Additional features include a 6kW solar panel system, shopper’s entry from the double garage, and a layout designed for both comfort and practicality.

Located within walking distance to Caladenia Primary School and close to local parks, shops, and transport, this home offers an exceptional opportunity to secure a premium family lifestyle in one of the area’s most desirable pockets.

Key Features & Lifestyle Benefits
Located within sought-after Caladenia Primary School catchment – Strong family appeal with excellent schooling just moments away
4 bedrooms, 2 bathrooms, 2 car garage + home office / optional 5th bedroom – Flexible layout ideal for growing families, remote work, or multi-purpose living
Impressive double door entry – Grand first impression with a sense of space and quality
Master suite with private ensuite – Your own retreat with comfort and privacy away from the main living zones
Dedicated home cinema room – Enjoy movie nights and entertainment from the comfort of your home
Multiple living zones including second living area – Perfect separation for family living, relaxation, and entertaining
Light-filled open plan kitchen, living and dining area – The heart of the home designed for modern family lifestyle
Stylish kitchen with stone benchtops & gas cooktop – Functional and elegant space for everyday cooking and hosting
Bedrooms 2, 3 & 4 all with built-in robes – Practical storage solutions for the whole family
Shopper’s entry from double garage – Convenience and security with direct internal access
Solar panel system (6kW) – Energy efficiency and long-term savings on electricity
Low maintenance backyard with gravel pathways – Easy-care outdoor space, ideal for busy lifestyles
Underground swimming pool
Perfect for summer entertaining and family enjoyment – Walking distance to Caladenia Primary School and local amenities