11 Spelhurst Terrace
THORNLIE WA 6108


Sold $590,000
Icon for listing bed 3
Icon for listing bath 1
Icon for listing car 0
Icon for listing land 710m2

Property Features

  • Building Size: 95m2
  • Land Size: 710m2
Call Me

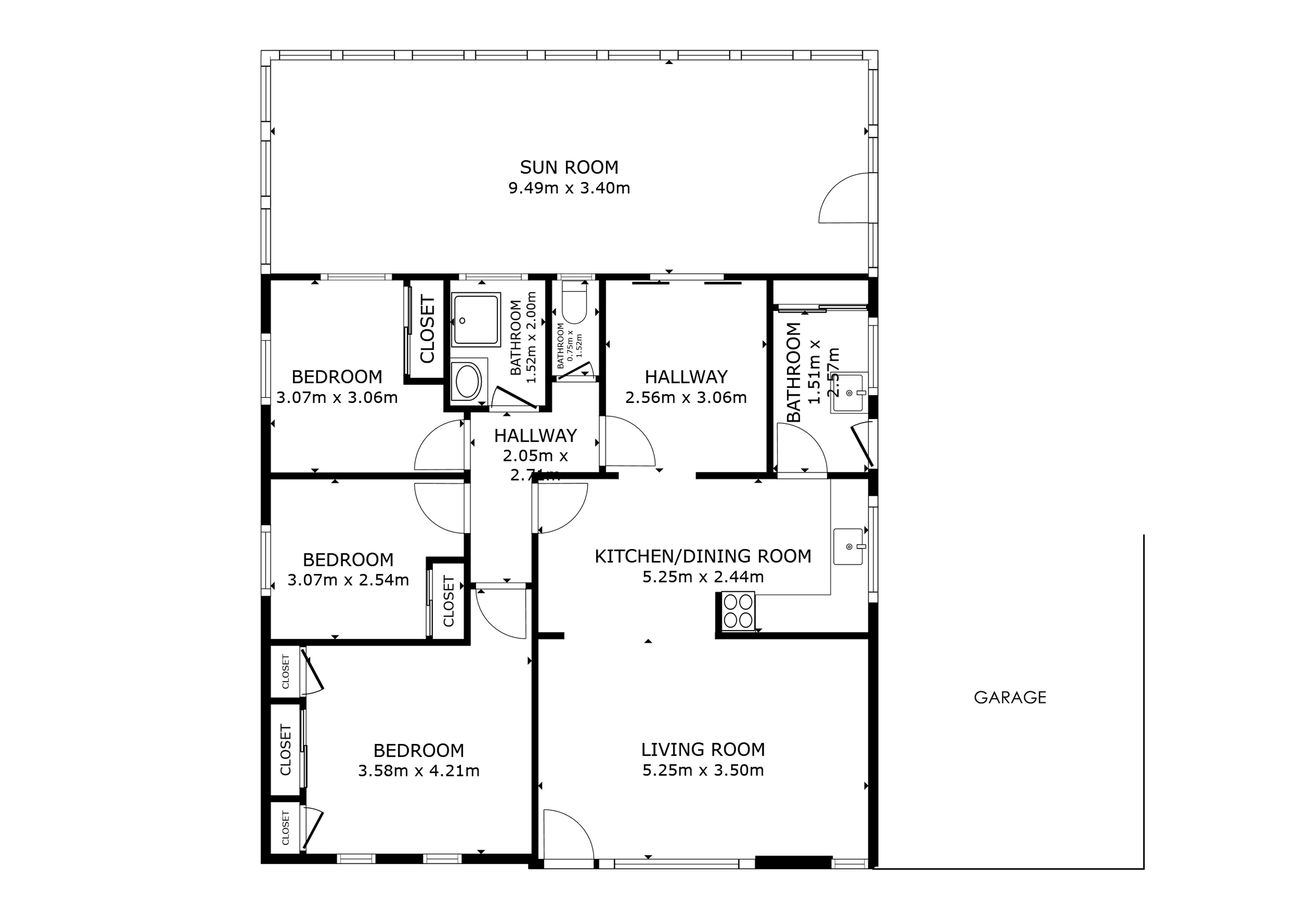
Endless Potential! Large Family Home with Massive Backyard

Set on a generous 710sqm block, this charming 3-bedroom, 1-bathroom home offers space, comfort, and endless potential in a quiet, family-friendly neighbourhood. Featuring high ceilings throughout, the home includes a formal lounge room, a separate dining area, and an additional lounge, providing plenty of room for the family to relax. The master bedroom boasts a good-sized built-in robe, split system air-conditioning, and a ceiling fan, while bedrooms 2 and 3 each include built-in robes, with bedroom 3 also offering split system air-conditioning and a fan for added comfort. The well-kept bathroom is both functional and tidy. Step outside to enjoy the enclosed courtyard, a large sunroom ideal for year-round use, and a massive backyard complete with a garden shed and water tank. With ample outdoor space and a versatile floor plan, this home is perfect for first-home buyers, families, or investors alike. Close to local schools, parks, shops, and public transport, this is a fantastic opportunity to secure a spacious home with plenty of potential.

Property Features:
· Generous 710sqm block in a quiet, family-friendly neighbourhood
· Multiple living areas: formal lounge, separate dining, and additional lounge
· Master bedroom with built-in robe, split system air-conditioning, and ceiling fan
· Bedrooms 2 & 3 both with built-in robes , Bedroom 3 also features split system air-conditioning and a ceiling fan
· Well-kept, functional bathroom
· Enclosed courtyard and large sunroom for year-round use
· Massive backyard with garden shed and water tank
· Ample outdoor space with potential for families, first-home buyers, or investors
· Close to local schools, parks, shops, and public transport