Property Features

  • Open Parking Spaces: 2
Call Me

Fully Renovated Family Living with Expansive Backyard in Thornlie

Positioned in the heart of Thornlie, this beautifully renovated home offers the perfect blend of comfort, practicality, and modern upgrades – all set on a generous block with a massive backyard to match. Conveniently located close to Thornlie Station, commuting and everyday travel is made easy.

Freshly painted throughout and complemented by new carpeting in the bedrooms, the home feels refreshed, inviting, and ready for its next chapter. The fully renovated interiors create a seamless balance between style and everyday functionality.

At the heart of the home, the kitchen is bathed in natural light thanks to a stunning skylight overhead, creating a bright and uplifting space to cook and gather. Flowing effortlessly to the outdoor areas, this home is designed for relaxed living and entertaining.

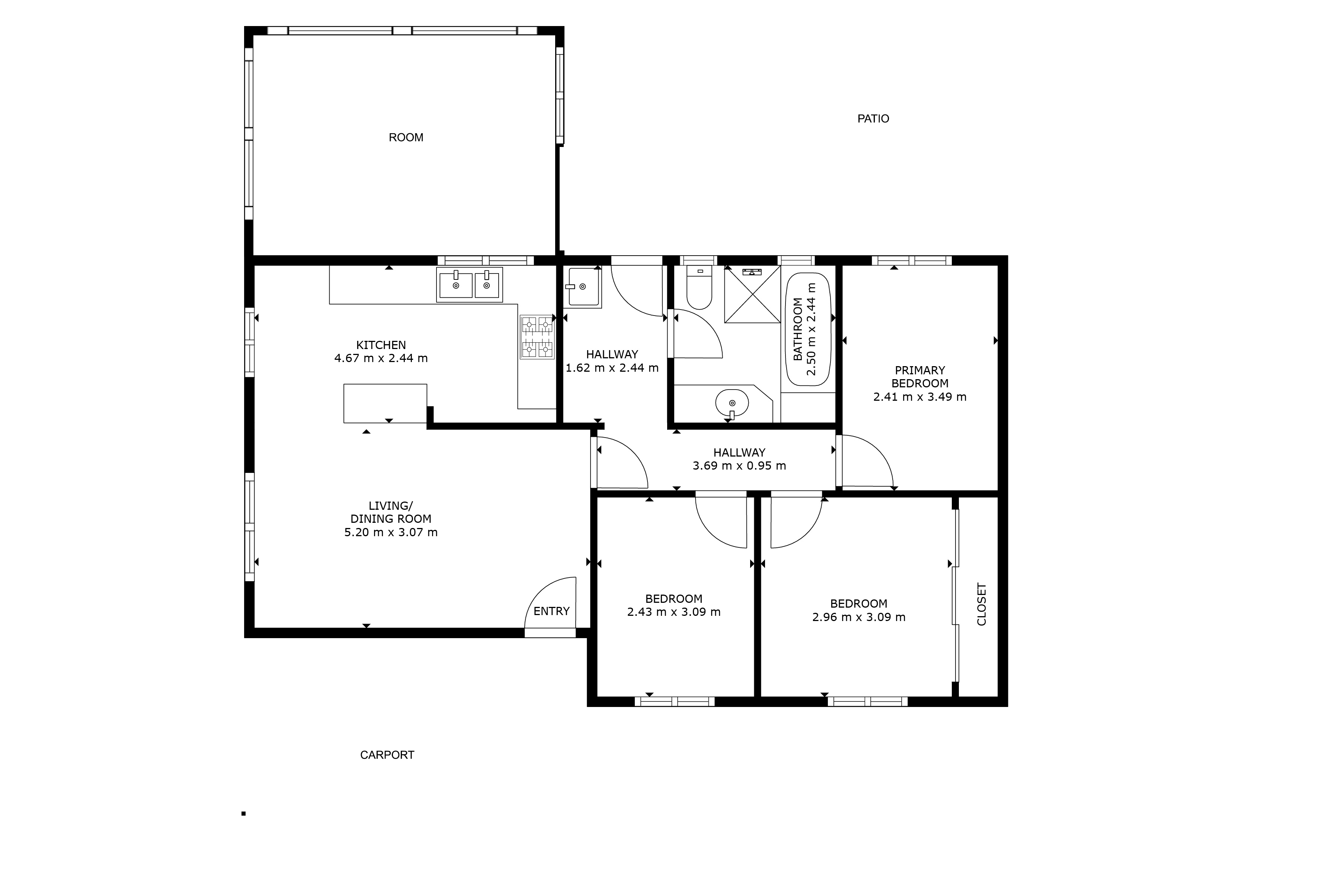
The accommodation is well-appointed, featuring four spacious bedrooms. Bedrooms 1, 2, and 3 are equipped with ceiling fans and evaporative air conditioning for year-round comfort, while Bedroom 2 also enjoys mirrored sliding wardrobe doors and soft new carpet underfoot. The fourth bedroom offers split-system air conditioning and direct access to the backyard – ideal as a guest room, home office, or private retreat.

Outside, the expansive backyard is truly a standout feature. Whether you envision weekend barbecues, space for the kids to run free, or future additions (STCA), the possibilities are endless. A large carport provides ample parking for multiple vehicles, trailers, or even a caravan.

Additional upgrades such as new gutters, solar panels to help reduce electricity costs, and ducted air conditioning further enhance the home’s value and comfort.

This is a move-in-ready opportunity offering space, upgrades, and lifestyle – all in a convenient and family-friendly location with transport at your doorstep.

Key Features:

Fully renovated throughout

Freshly painted interiors

New carpet in bedrooms

Kitchen with skylight for natural light

Four well-sized bedrooms

Evaporative and ducted air conditioning

Split-system air conditioning in Bedroom 4

Solar panels for energy efficiency

New gutters installed

Massive backyard with large carport for multiple vehicles

Close to Thornlie Station for easy commuting