8 Laurel Court
THORNLIE WA 6108
Upcoming Inspections |
| Saturday, Nov 8 11:00am - 11:30am |
Property Features
- Garage Spaces: 2
- Land Size: 570m2
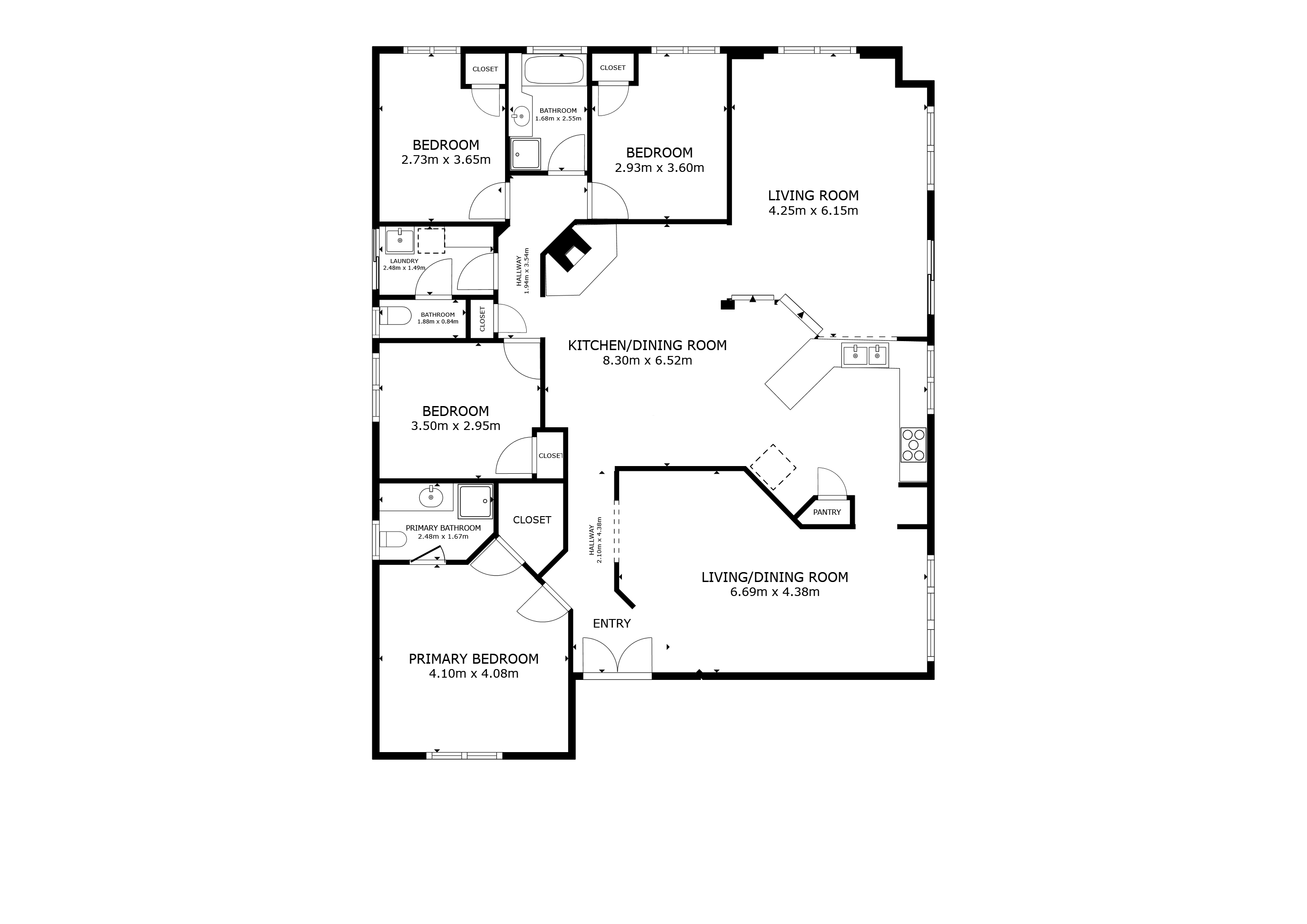
Modern 4-Bedroom Family Home with Pool, Wood Fire & Drive-Through Access
Everything about this beautifully presented 4-bedroom, 2-bathroom family home is designed to impress, combining comfort, functionality, and modern living. Nestled in a quiet, family – friendly location, this property offers a seamless indoor-outdoor lifestyle, perfect for entertaining or relaxed family living.
Perched on a low-maintenance block with a 2-car carport and ample front parking, the home also features drive-through access to the backyard and pool area, with space for a caravan, boat, or additional vehicles. Solar panels add energy efficiency, making it as practical as it is stylish.
Step inside to a spacious living room by the entrance, flowing into the dining area, which is equipped with a wood fire and a gas cooktop, creating a cozy and functional hub for family life. The open-plan kitchen, featuring ample storage and a walk-in pantry, is centrally located and surrounded by the living and dining spaces, forming the heart of the home. Sliding doors from the living/dining area provide direct access to the backyard swimming pool, making entertaining effortless.
The master bedroom boasts an ensuite and walk-in wardrobe, while the other three bedrooms each feature built-in robes. A separate toilet with a bathtub completes the bathroom facilities.
Outside, the backyard is perfect for entertaining, featuring a concrete-surrounded swimming pool, a sheltered alfresco area with BBQ appliances, two garden sheds providing extra storage, and a low-maintenance yard.
Home Features
• 4 bedrooms, master with ensuite and walk-in wardrobe
• Three secondary bedrooms with built-in robes
• Spacious living room by entrance
• Dining area with wood fire and gas cooktop
• Open-plan kitchen with walk-in pantry and ample storage
• Separate toilet with bathtub
• Drive-through access to backyard and pool area
• 2-car carport
• Ample front parking, including space for caravan/boat and extra vehicles
• Low-maintenance front and backyard
• Swimming pool with concrete surround
• Sheltered alfresco entertaining area with BBQ appliances
• Two garden sheds for extra storage
• Solar panels